Gmina Żabno angażuje się w projekt Społecznej Inicjatywy Mieszkaniowej poprzez realizację inwestycji budownictwa społecznego. W planach znajduje się budowa 36 lokali mieszkalnych w miejscowości Żabno, na działkach nr 526/5, 526/4, 526/3, 527/3.
Inwestycja obejmuje także niezbędną infrastrukturę towarzyszącą. To krok w stronę poprawy dostępności mieszkań w regionie, skierowany do osób o średnich dochodach.
Społeczna Inicjatywa Mieszkaniowa (SIM) Tarnów to projekt mający na celu zaspokojenie potrzeb mieszkaniowych mieszkańców gmin poprzez budowę mieszkań na wynajem o umiarkowanym czynszu. Inicjatywa jest skierowana do osób, które mają zdolność regularnego opłacania czynszu, ale ich dochody nie pozwalają na zaciągnięcie kredytu hipotecznego.
Gmina Żabno aktywnie uczestniczy w tej inicjatywie, będąc jednym z jej partnerów. Wspólnie z innymi gminami z regionu, takimi jak Tarnów, Lisia Góra, Radłów, Skrzyszów, Szczucin, Gręboszów, Łącko, Biecz, Bobowa, Żabno powołało spółkę KZN Społeczną Inicjatywę Mieszkaniową. Celem tej współpracy jest koordynacja budowy przystępnych cenowo mieszkań na wynajem, zwłaszcza dla młodych rodzin w Małopolsce.
Dzięki tej współpracy mieszkańcy gminy Żabno będą mieli możliwość skorzystania z oferty mieszkań na wynajem o umiarkowanym czynszu, co przyczyni się do poprawy jakości życia w regionie.
Osoby zainteresowane najmem mieszkań w ramach SIM Tarnów mogą znaleźć informacje na temat naboru, korzyści z bycia najemcą oraz niezbędnych dokumentów na oficjalnej stronie inicjatywy (SIM Tarnów).
Zaangażowanie gminy Żabno w projekt SIM Tarnów stanowi istotny element polityki społecznej i rozwoju lokalnego, mający na celu zapewnienie mieszkańcom dostępu do przystępnych cenowo mieszkań na wynajem.
Więcej szczegółów na stronie SIM Tarnów.
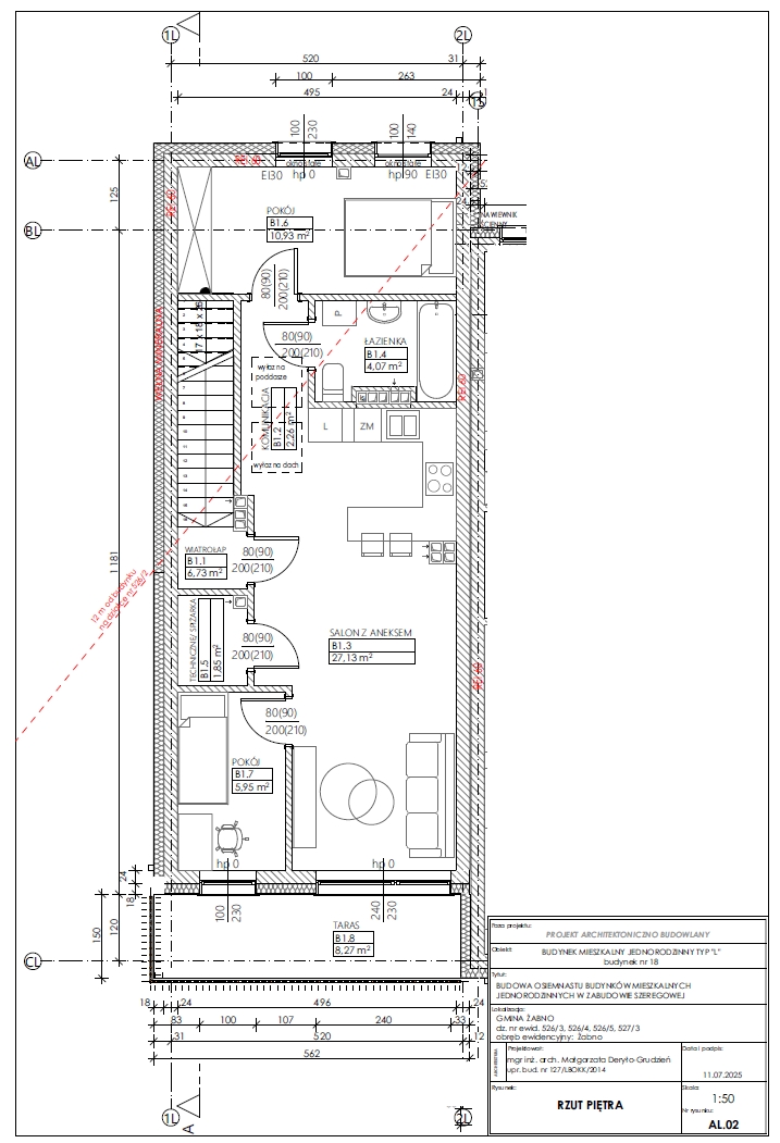
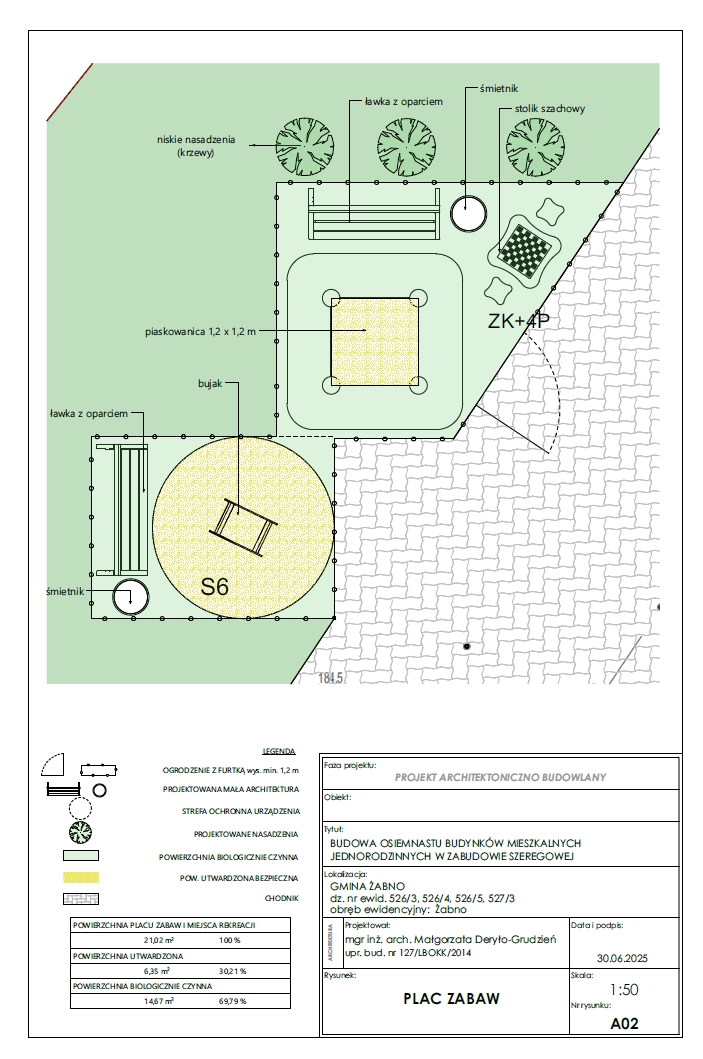
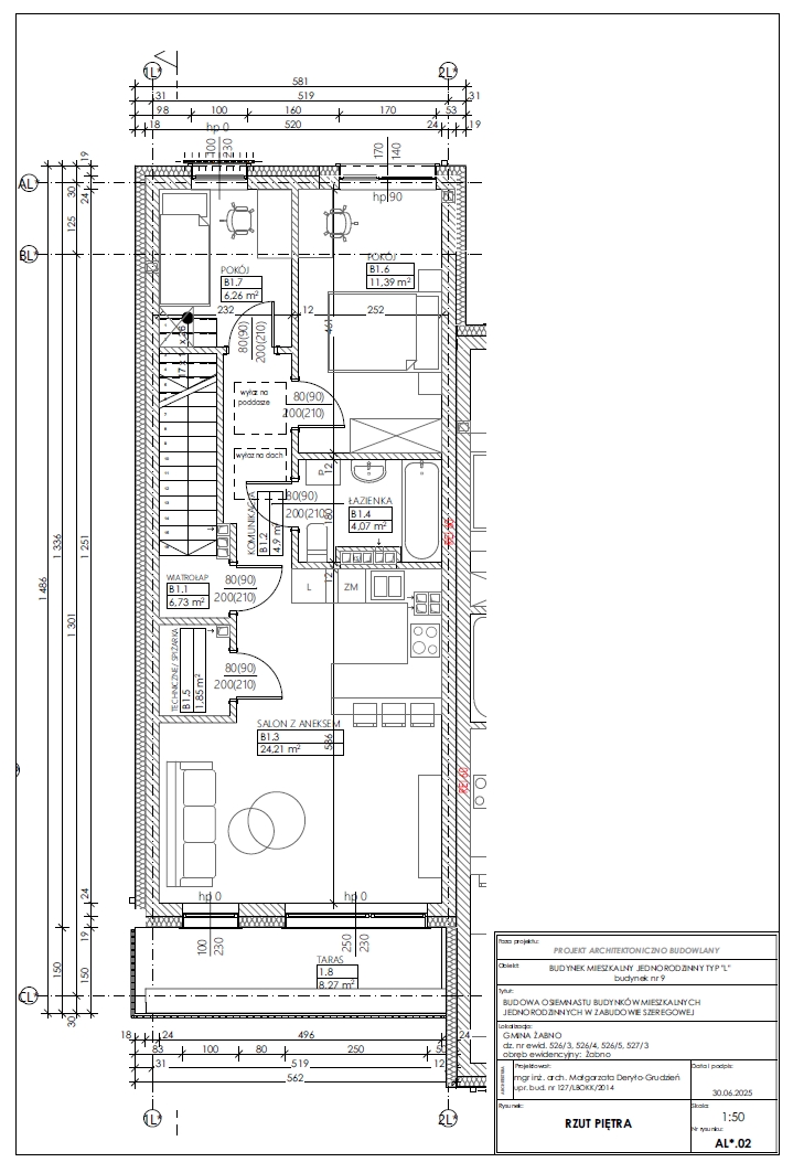
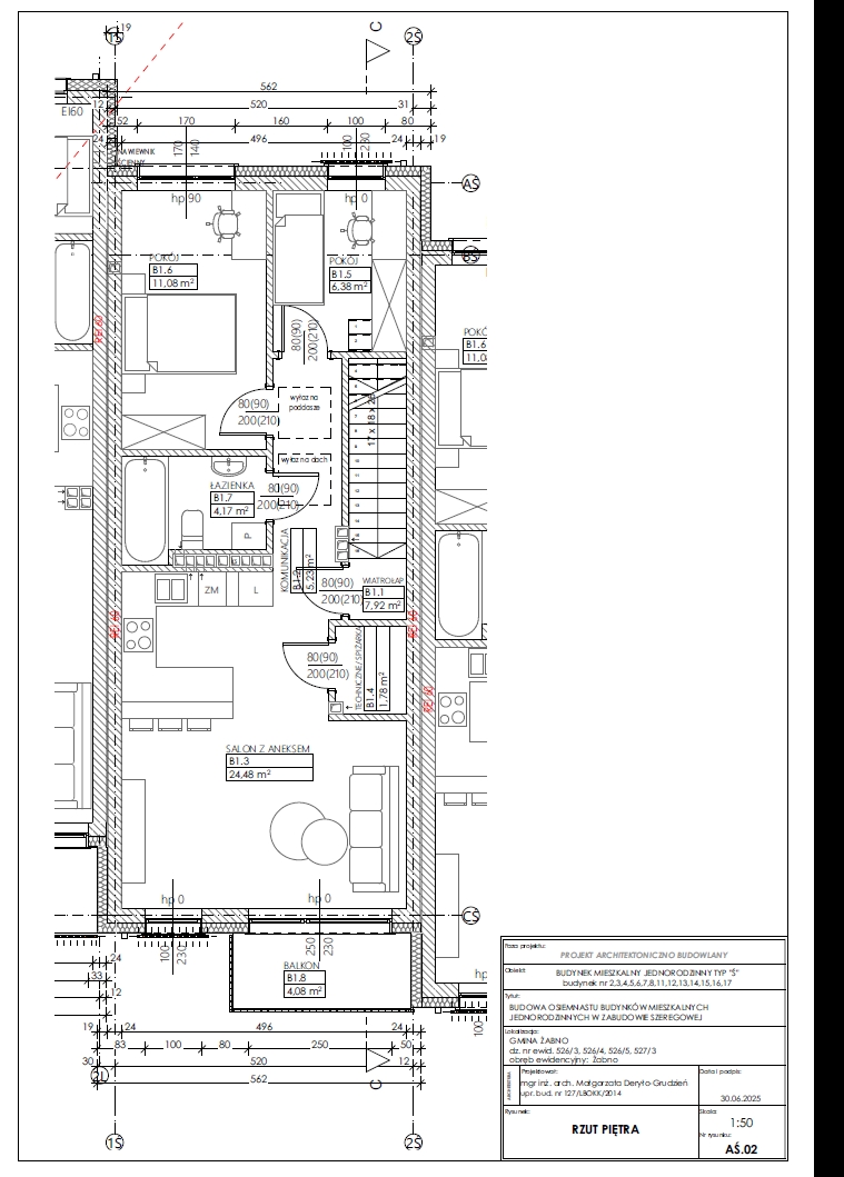
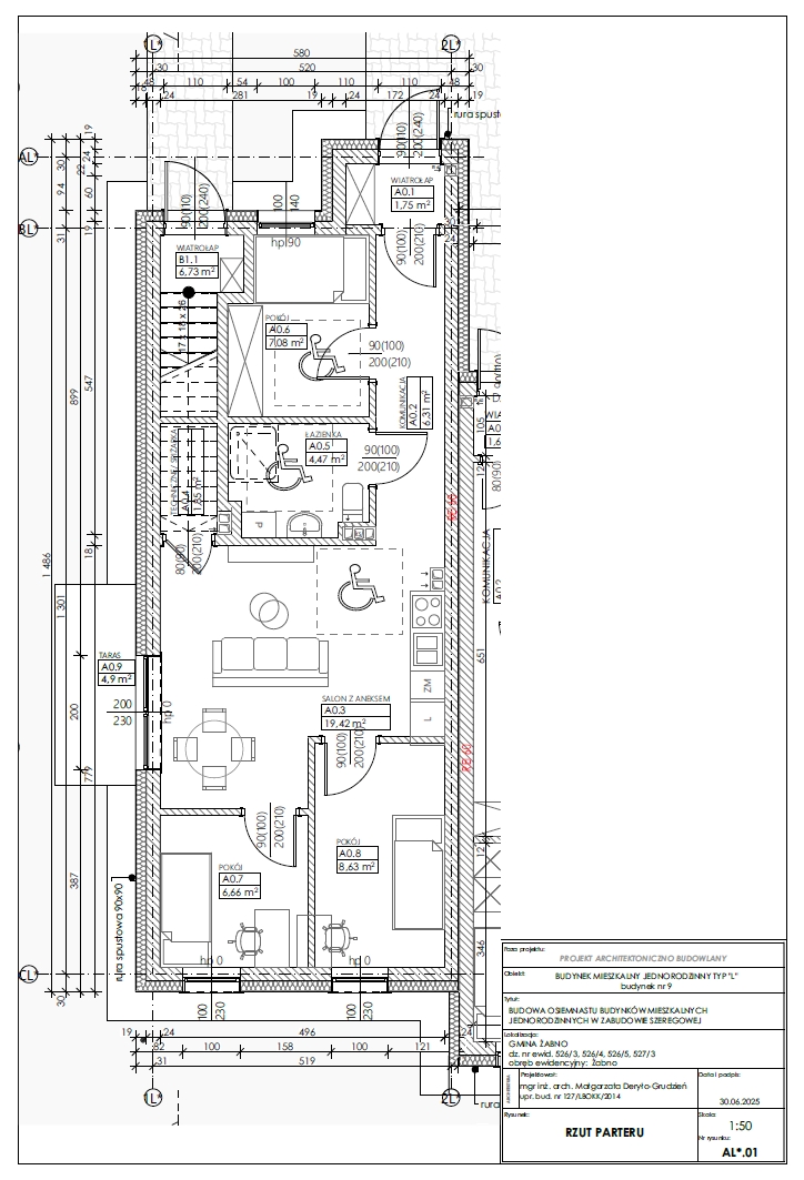
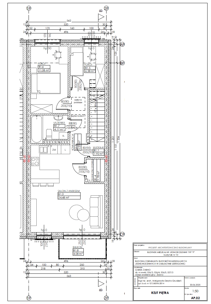
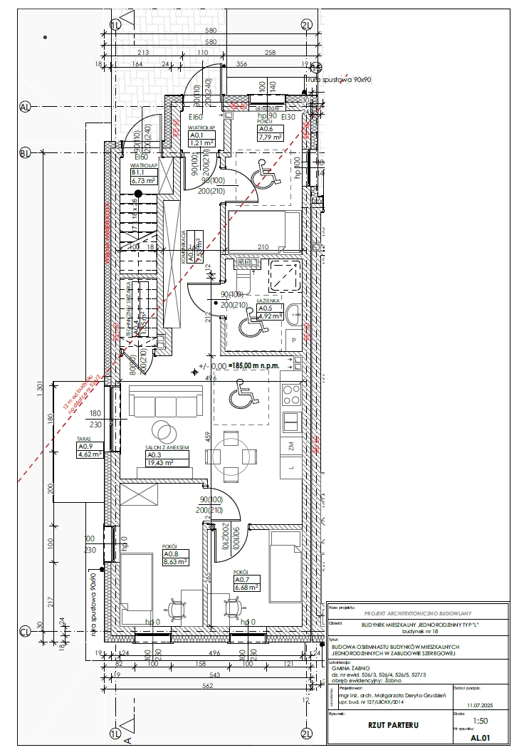
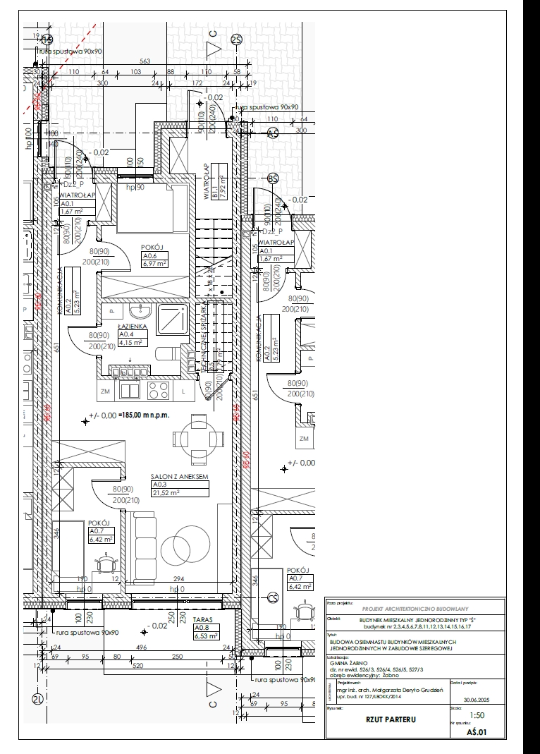
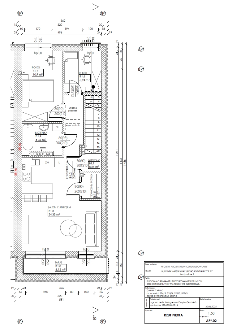
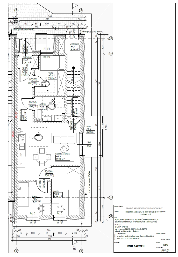
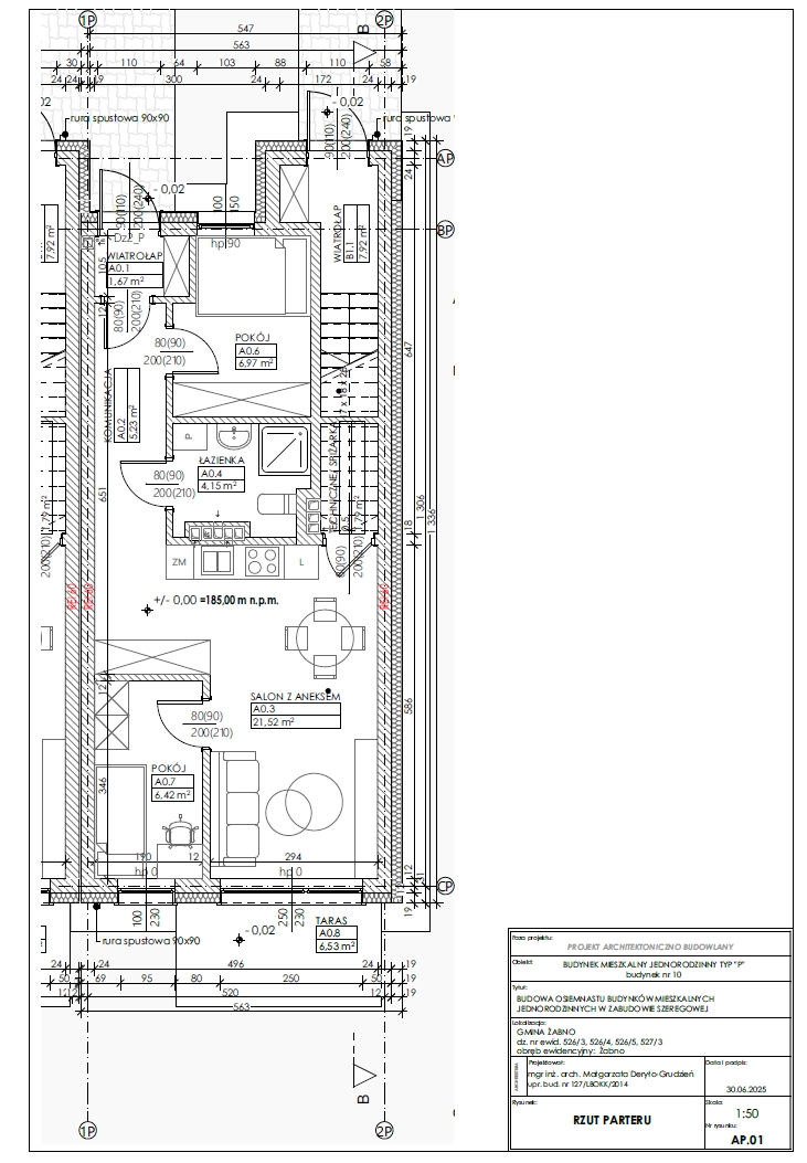
BUDOWA OSIEMNASTU BUDYNKÓW MIESZKALNYCH JEDNORODZINNYCH W ZABUDOWIE SZEREGOWEJ WRAZ Z UTWARDZENIEM TERENU INSTALACJAMI WEWNĘTRZNYMI (CIEPŁEJ WODY UŻYTKOWEJ, WODY ZIMNEJ, INSTALACJĄ CENTRALNEGO OGRZEWANIA, KANALIZACJI SANITARNEJ, INSTALACJĄ ELEKTRYCZNĄ I OŚWIETLENIOWĄ) I ZEWNĘTRZNYMI (ZEWNĘTRZNĄ INSTALACJĄ GAZOWĄ, ZEWNĘTRZNĄ INSTALACJĄ WODOCIĄGOWĄ, ZEWNĘTRZNĄ INSTALACJĄ KANALIZACJI SANITARNEJ, ZEWNĘTRZNĄ INSTALACJĄ KANALIZACJI DESZCZOWEJ WRAZ ZE ZBIORNIKIEM RETENCYJNYM I SEPARATOREM SUBSTANCJI ROPOPOCHODNYCH I WEWNĘTRZNĄ LINIĄ ZASILAJĄCĄ NN) NA DZIAŁKACH NR EWID. 526/3, 526/4, 526/5 I 527/3 W MIEJSCOWOŚCI ŻABNO
